Designed by: Angelique Armstrong, Armstrong Interiors
Story by: Trendsideas
Photography by: Hazel Redmond and Mick Stephenson
From the designer:
An earthquake damaged 70s gem required complete renovation.
The brief was to retain as much 70’s materials and design as possible to keep the home’s modern mid-century character while bringing it up to modern day living and meeting council regulations.
Set amongst an oasis of native bush with towering gum trees, the home commands a presence on the site on which it was built.
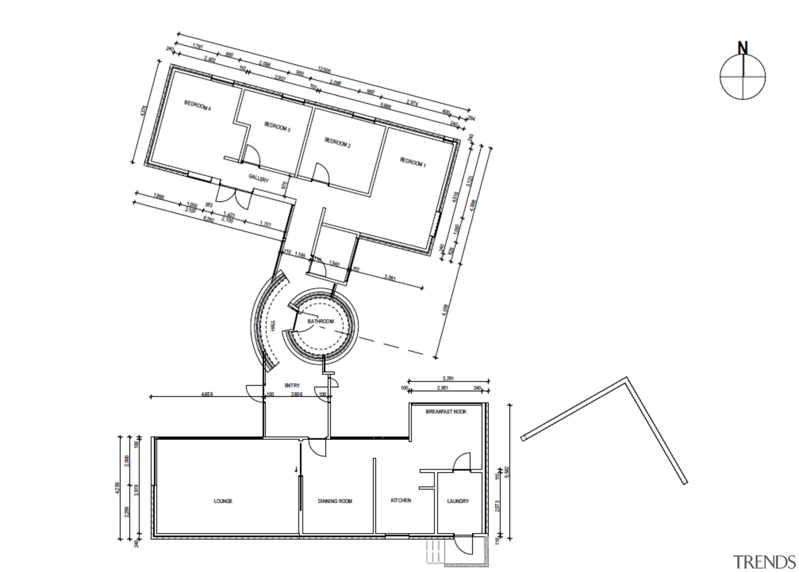
The home’s floorplan is an H shape with the living spaces at one end of the house and a corridor leading though to the bedrooms at the other end.
This well considered design utilises the land in every aspect.
On one side of the home there is a lush green canopy of native plants and a large cherry blossom tree that cascades down a layered garden to a stream.
Dark cedar cladding and a kwila deck nestle into nature, offering a private secluded setting to retreat into.
The cladding includes original 70s textured bricks that butt up to dark window frames and rimu soffits.
On the opposite side of the home, the formal courtyard creates a Yin and Yang feeling, with large scale, fully glazed doors and windows that open out on both sides of the home.
A unique feature of the home is the four meter high central cone-shaped brick wall that sits in prominent position – seen from inside and outside the home.
Angelique Armstrong’s eye for detail and appreciation for art and history made this Mid-century home instantly appealing.
“I could see the potential immediately which was exciting, but the home also required a lot of foundation work after the Christchurch earthquake.
“I knew this home would need experienced tradespeople to bring it back to not only its former glory, but also to our current building standards.
“This required careful consideration and an understanding of the key features of the period to ensure that any alterations did not diminish the unique value of the home.”
Angelique Armstrong
A bedroom at one end of the home cantilevers out into the native garden.
The structural support for this room required the slopping section underneath to be dug away and reinforced.
A home gym then replaced the existing cellar underneath the bedroom.
Partial areas clad in brick were replaced with new timber cladding, and the bricks were reused to create feature walls to the entrance way of the home.
All materials were reused wherever possible.
The original wooden louver doors in the bathroom, wooden beams and the wooden rimu ceiling have all been retained.
Subtle textured wallpapers in the master bedroom and dining area feel in-keeping.
The house is warm and light, with a palette of elegant, muted tones.
The internal rearrangement of the living areas and kitchen complement the existing three bedrooms and take full advantage of the northerly aspect and elevated position of the house on this sloping site.
The outcome is a fully updated home, suitable for the changing demands of a contemporary family lifestyle.
It maintains a comfortable and lived-in ambience and pays homage to the best aspects of the original design.
View more from

Credit List
Renovating designer and kitchen designerAngelique Armstrong, Armstrong Interiors | Landscape design and implemetationAngelique Armstrong and Austin Ashphalt |
Window/door joineryHagley Aluminium Joinery | Bedroom flooringAviemore Aurora Carpet, from The Flooring Centre |
WallcoveringsElitis Wallpaper in master bedroom; Romo Black Edition Wallpaper in dining room; Neolith Pulpis Silk for kitchen splashback | Feature lightingLighthouse Lighting |
Dining table/chairsReclaimed Oregan Timber Custom Dining Table, from Parsons Green; Roda Italian furniture | BuilderWildberry Buildings |
CladdingNew Vertical Timber - treated and dressed band-sawed pine, stained; 90 series Original Blonde Brick | Main flooringFrench Oak Engineered Flooring, from Foret; Aviemore Aurora Carpet, from The Flooring Centre |
Bathroom tilesCDK Stone / Tile Warehouse | PaintDulux / Resene – various colours |
Control systemsWeathermaster Willandra Light Filtering rollershades, with Somfy motor controls | AwardsTrends International Design Awards (TIDA) Homes – Winner |
From the designer:
An earthquake damaged 70s gem required complete renovation.
The brief was to retain as much 70’s materials and design as possible to keep the home’s modern mid-century character while bringing it up to modern day living and meeting council regulations.
Set amongst an oasis of native bush with towering gum trees, the home commands a presence on the site on which it was built.
The home’s floorplan is an H shape with the living spaces at one end of the house and a corridor leading though to the bedrooms at the other end.
This well considered design utilises the land in every aspect.
On one side of the home there is a lush green canopy of native plants and a large cherry blossom tree that cascades down a layered garden to a stream.
Dark cedar cladding and a kwila deck nestle into nature, offering a private secluded setting to retreat into.
The cladding includes original 70s textured bricks that butt up to dark window frames and rimu soffits.
On the opposite side of the home, the formal courtyard creates a Yin and Yang feeling, with large scale, fully glazed doors and windows that open out on both sides of the home.
A unique feature of the home is the four meter high central cone-shaped brick wall that sits in prominent position – seen from inside and outside the home.
Angelique Armstrong’s eye for detail and appreciation for art and history made this Mid-century home instantly appealing.
“I could see the potential immediately which was exciting, but the home also required a lot of foundation work after the Christchurch earthquake.
“I knew this home would need experienced tradespeople to bring it back to not only its former glory, but also to our current building standards.
“This required careful consideration and an understanding of the key features of the period to ensure that any alterations did not diminish the unique value of the home.”
Angelique Armstrong
A bedroom at one end of the home cantilevers out into the native garden.
The structural support for this room required the slopping section underneath to be dug away and reinforced.
A home gym then replaced the existing cellar underneath the bedroom.
Partial areas clad in brick were replaced with new timber cladding, and the bricks were reused to create feature walls to the entrance way of the home.
All materials were reused wherever possible.
The original wooden louver doors in the bathroom, wooden beams and the wooden rimu ceiling have all been retained.
Subtle textured wallpapers in the master bedroom and dining area feel in-keeping.
The house is warm and light, with a palette of elegant, muted tones.
The internal rearrangement of the living areas and kitchen complement the existing three bedrooms and take full advantage of the northerly aspect and elevated position of the house on this sloping site.
The outcome is a fully updated home, suitable for the changing demands of a contemporary family lifestyle.
It maintains a comfortable and lived-in ambience and pays homage to the best aspects of the original design.
View more from

[clean_tags]
Credit List
Renovating designer and kitchen designerAngelique Armstrong, Armstrong Interiors | Landscape design and implemetationAngelique Armstrong and Austin Ashphalt |
Window/door joineryHagley Aluminium Joinery | Bedroom flooringAviemore Aurora Carpet, from The Flooring Centre |
WallcoveringsElitis Wallpaper in master bedroom; Romo Black Edition Wallpaper in dining room; Neolith Pulpis Silk for kitchen splashback | Feature lightingLighthouse Lighting |
Dining table/chairsReclaimed Oregan Timber Custom Dining Table, from Parsons Green; Roda Italian furniture | BuilderWildberry Buildings |
CladdingNew Vertical Timber - treated and dressed band-sawed pine, stained; 90 series Original Blonde Brick | Main flooringFrench Oak Engineered Flooring, from Foret; Aviemore Aurora Carpet, from The Flooring Centre |
Bathroom tilesCDK Stone / Tile Warehouse | PaintDulux / Resene – various colours |
Control systemsWeathermaster Willandra Light Filtering rollershades, with Somfy motor controls | AwardsTrends International Design Awards (TIDA) Homes – Winner |
Related Articles
Hidden gem
A top designer creates her own kitchen, balancing modernity with character elements that tie back to the classic home – the kitchen can all but vanish or open up to dedicated work stations
Home hugs landscape
A landscape courtyard pushes into this sculptural home, interrupting the open-concept interior plan and visually separating private spaces from public areas
Sculptural retreat
A contemporary ensuite blends sculptural form with function, delivering a spa-like experience anchored in New Zealand design sensibilities and a highly resolved material palette
Portfolios
View Industry Specialists
Portfolios
View Industry Specialists
Askö
Furniture designed for life. Ethically made dining and living furniture and accessories by international and New Zealand designers where refined elegance meets sleek, contemporary form. Explore our extensive range of designer furniture via our Christchurch showroom or browse online.
Plumbing World
Plumbing World is New Zealand’s most prominent 100% Kiwi-owned national plumbing merchant, operating over 50 branches from Kerikeri to Invercargill. Plumbing World offers a wide range of bathroom, kitchen, laundry, heating, and hot water products, catering to trade professionals and homeowners.
Landmark Homes
Founding directors Paul and Debbie Clarke established Landmark Homes in 1977. Their vision was to offer “something more exciting” than the average home: a home that made creative use of space but was also beautiful to live in.
Poggenpohl
Poggenpohl is a premium German kitchen brand known for its innovation, timeless design, and precision craftsmanship, offering bespoke kitchen solutions that blend luxury with functionality.
Mastercraft Kitchens
Founded in 1985, we are the largest group of independently owned and operated kitchen businesses in New Zealand, operating under a national banner. Our licensees have been carefully selected and are experts in their craft. We share an absolute passion for the design, manufacture and installation of high quality, well designed kitchens and other household cabinetry provided with personalised, friendly local service. Think national - be local.
Kitchen Studio
At Kitchen Studio we are very proud of the fact that we are been voted the most trusted kitchen brand in New Zealand for the ninth year running, and there are good reasons why more Kiwis trust us to transform their kitchen than anyone else.
Box™
Box isn’t like other New Zealand architecture firms; we’re a building design company responsible for every part of the process, from design to construction. If you’re looking for a team of designers or builders in Auckland, we can help.
The best architects know what it means to design both beautifully and practically, ensuring the best builders can, in turn, build more efficiently and collaboratively with you and the designer or architect.
Our consistent and attentive involvement of each team throughout the entire design-build process includes our in-house cost estimation team, who value-engineer projects to ensure the highest quality and value, while respecting your vision as our client.
Frontier Pools
We specialise in bespoke concrete swimming pool design and construction.
From infinity-edge showpieces to compact plunge pools in tight city spaces, we create concrete pools in any shape, size, or finish. The possibilities are endless and the quality is uncompromising.
With an expert in-house team, we manage every step, from concept to completion, delivering high-quality pools tailored to your space, style, and lifestyle.
Altus Window Systems
Altus is a leading New Zealand manufacturer and exporter of innovative designs in aluminium extrusions and extrusion-based building systems.
Altus is an award winning leader of the Aluminium extrusion and rolled product market. We specialise in design, manufacture, import and export of extrusion and rolled product, and distribute to both local and International markets.
We’re experts in creating solutions to integrate and partner with our customers across a wide range of sectors; marine, transport, architectural systems, window and door fabrication, mechanical engineering and agricultural industries.
Luxaflex®
Luxaflex® has been adding style and sophistication to New Zealand windows since the 1950s. Our design heritage is founded on innovation for today and tomorrow while taking care to celebrate the beauty in the details. To us, form and function are synonymous. Consistently pushing the boundaries, we are proud to be the market-leaders in daylight regulation and solar heat control solutions.
We combine unique design and practical features to create outstanding products – the essential ingredients for creating any discerning home.
Plantation Bamboo
Building or renovating your space? It’s not just about finding materials that match your values of sustainability and durability; you want them to look fantastic too. But with so many options out there, the search can be daunting.
That’s where Plantation Bamboo comes in.
We understand the challenges you face in navigating through countless choices. That’s why we specialise exclusively in bamboo. Our focus is to simplify your search for the perfect building material that not only meets your sustainability and durability criteria but also adds a touch of natural elegance to your space.
Mastercraft Kitchens
Founded in 1985, we are the largest group of independently owned and operated kitchen businesses in New Zealand, operating under a national banner. Our licensees have been carefully selected and are experts in their craft. We share an absolute passion for the design, manufacture and installation of high quality, well designed kitchens and other household cabinetry provided with personalised, friendly local service. Think national - be local.
Kitchen Studio
At Kitchen Studio we are very proud of the fact that we are been voted the most trusted kitchen brand in New Zealand for the ninth year running, and there are good reasons why more Kiwis trust us to transform their kitchen than anyone else.
Box™
Box isn’t like other New Zealand architecture firms; we’re a building design company responsible for every part of the process, from design to construction. If you’re looking for a team of designers or builders in Auckland, we can help.
The best architects know what it means to design both beautifully and practically, ensuring the best builders can, in turn, build more efficiently and collaboratively with you and the designer or architect.
Our consistent and attentive involvement of each team throughout the entire design-build process includes our in-house cost estimation team, who value-engineer projects to ensure the highest quality and value, while respecting your vision as our client.